DRYWALL TAKEOFF SERVICES
If you are struggling to find the best drywall takeoff services to avoid the hustle of over quoting or underquoting on your bids, we are here to help you with a highly precise and detailed drywall estimate.
With many years of experience in the AEC industry, World Estimating features expertise in professional and comprehensive estimates and quantity takeoffs with special emphasis on accuracy for the high-end residential, commercial, and retail projects. The accuracy in our estimates is established by employing up to date zip code based pricing for material and labor. We follow the strict guidelines of the certified American estimators organization like American Association of Cost Engineers (AACE) and the Australian Institute of Quantity Surveyors (AIQS).



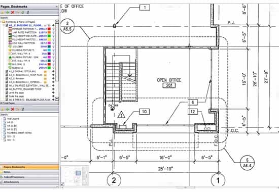
When preparing the drywall estimate, complete knowledge of the drywall installation process is required. Our drywall estimators start with the review of drawing plans and systematic bid documents to identify the scope of the projects. Then, using the latest takeoff software like Planswift, we measure the walls, partitions, and ceilings by the point and click methods. The use of digital software mitigates the chances of errors and the exact square footage are measured.